Header<
More recently Tromsostan has ventured into the residential market by adding properties in Maiden head, Sevenoaks, Hildenborough, Petts Wood. All these properties are maintained in house by CDL. They range from 3 bedroom cottages to 8 bedroom houses.


Bray

This wonderful lodge was purchased by the company for it's absolute beauty and no other reason. Everybody who came in contact with this outstanding home fell in love with it and it's location as you can see by the pictures.
Bray 1


 
Bray 2


 
Bray 3


 
Bray 4


Forge Cottage

This cottage was purchased and refurbished, the garden to the side had planning potential and the end result can be seen. It is also known as the white cottage.
Forge Cottage 1



 
Forge Cottage 2


Bramble Close

Bramble close in Hildenborough was acquired for Tromsostan's portfolio in 2002 and has been a very popular let in a beautiful quite rural area.
Bramble Close 1


 
Bramble Close 2


 
Bramble Close 3


Tubbs Hill - Sevenoaks

These two maisonette's were acquired in 2004 and have been exceptionally popular lets due to there location. A minute walk from Sevenoaks train station.
Tubbs Hill 1


 
Tubbs Hill 2


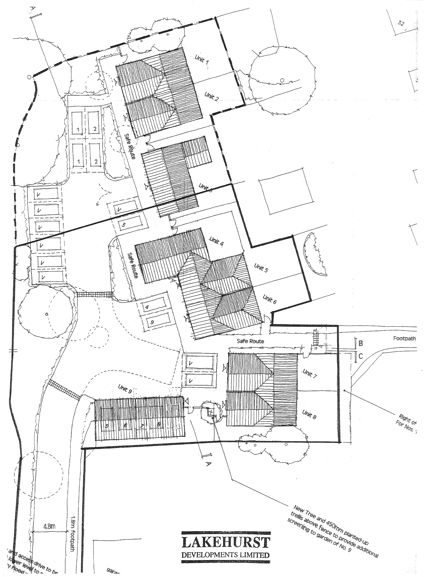
Cudworth Road, Willesborough, Kent

For Sale

Residential Development Site
Rear of 24-32 Cudworth Road Willesborough
Ashford TN24 0BG

Detailed Planning consent for:

5 x 3 Bed Houses and 1 x 2bed Apartment
With Garaging and Parking

Further land may be available with planning consent for 3 x 3 bed houses

Offers invited...

Viewing : The site can be viewed without appointment at any time during daylight hours

Location:  The site is located at the rear of Cudworth Road and Canterbury Road on the site of primarily former back gardens. Ashford Town centre with its school, shops and National and International railway stations is just over 1½ mile distant.

Access to the M20 motorway providing fast access to London and the Kent coast is about 2 miles distant.

Description: The site is former garden land with a small area that has historically been used for car repairs.

Services: All main services are available.

Planning: Planning consent was granted by Ashford Borough Council on 18th August 2006 – Application number 05/02030/AS for 9 dwellings. However the area being sold is shown on the attached plan as plots 4 to 9.

The additional land may be available by negotiation with the owners. The existing site layout and location plan are attached.

Tenure: The site is available Freehold with vacant possession.

Price:  Offers are invited

Local Authority:  Ashford Borough Council Civic Centre Tannery Lane Ashford TN23 1PL telephone 01233 331111

Note:  The purchaser will be responsible for paying the sales commission on behalf of the seller

Please click the images for a larger view
Images will pop-up as a PDF that you can print

All Enquiries:

John Oakley 01622 728059
john@johnoakley.co.uk

Cudworth Road


Cudworth Road